×
تصویرها برای همین ملک است .
درباره این آگهی
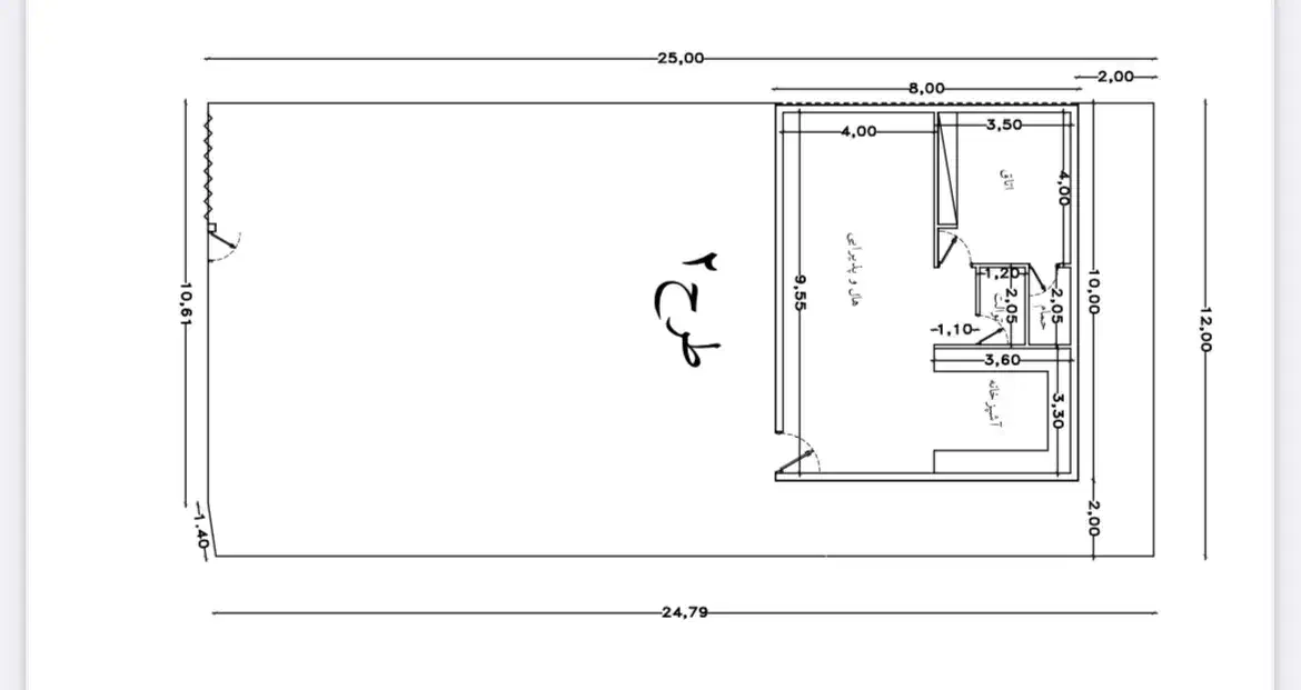
250 متری شمالی از زمین های بنیاد مسکن کوچه 14 متری فونداسیون به متراژ 120 متر اجرا شده تمام هزینه های دهیاری وبیمه وغیره پرداخت شده دارای وام بنیاد آماده در مرحله ی پرداخت به مبلغ 250 میلیون تومان
جزئیات
- متراژ:250 متر مربع
- اتاق ها : بدون خواب
- موجود از:1404/08/10
- قیمت : 650,000,000 تومان
- قیمت (متر) : 2,600,000 تومان
- اجاره برای : خانواده
- نوع : زمین و کلنگی
- نوع زمین : مسکونی
